top of page


Designing this two-bedroom, one-bath house was an exciting and creative journey. We pushed the boundaries and let our imaginations run wild to create a unique and playful retreat. Our goal was to design an Airbnb that feels like an instant escape, bringing joy and a sense of adventure the moment you walk through the door. Each space has its own unique character, yet they all connect seamlessly, creating a cohesive and harmonious design!
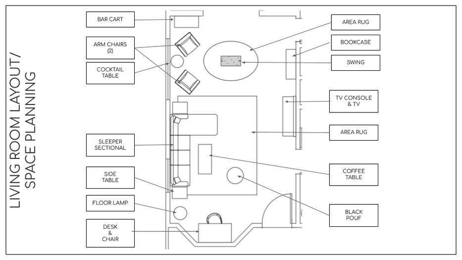
Design Process
Before

bottom of page
.png)













































